Rodinný 2dům s garáží Vejprnice - Ječná

Rodinný 2dům s garáží Vejprnice - Ječná

Jedná se o příjemné bydlení s výbornou dostupností MHD, školy, školky, obchodu a restaurací. Svým obyvatelům poskytuje dostatek soukromí a také spoustu míst, kam zajít s rodinou na procházku. Obec Vejprnice se nachází cca 1 km od hranice města Plzně a jedná se o jediný směr do centra, kde nemusíte stát v dlouhých zácpách. Ke každému domu náleží garáž.

Slunné bydlení pro ještě více radosti ze života

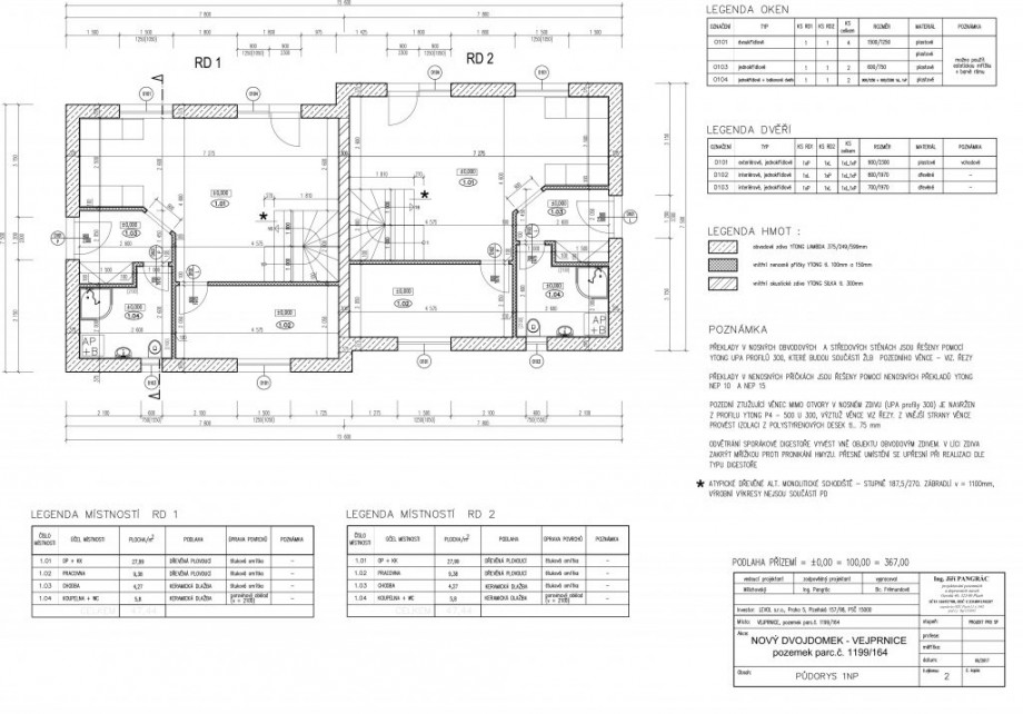
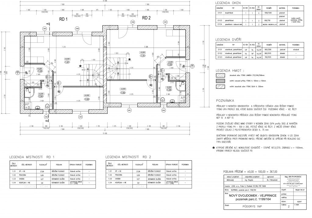
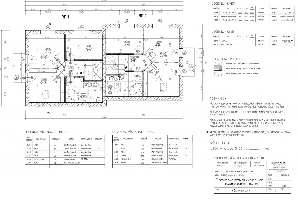
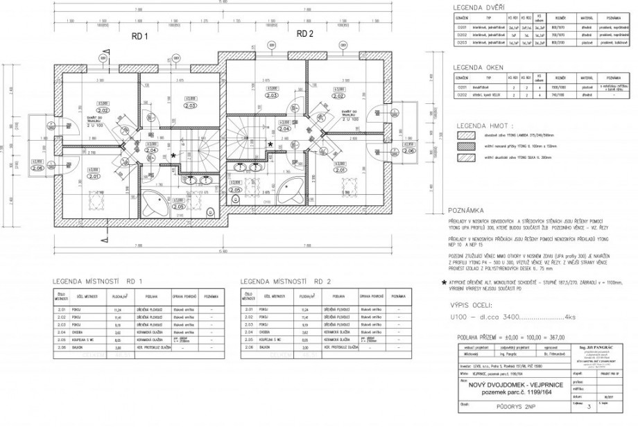
Nabízíme k prodeji patrový rodinný dvojdomek s celkovou výměrou 94 m2, ke kterému přiléhá zahrada. V přízemí se nachází obývací pokoj s kuchyňským koutem o ploše 28 m2, dále také pracovna 9,4 m2 a koupelna s WC 5,8 m2. V patře jsou vstupy z chodby do jednotlivých pokojů. Dispozičně se jedná o 2 pokoje po 11,3 m2 a 1 pokoj velký 9,2 m2. Nachází se zde také koupelna o velikosti 8 m2. K jednomu z pokojů je připojen balkon o velikosti 3 m2. Ke každému domu náleží garáž.

Kontaktujte nás

Máte zájem o bydlení, nebo máte dotaz?

Kontaktujte nás a naši specialisti Vám co nejdříve odpoví. Jiří Prokeš +420 724 936 101 prokes@mdreality.cz
Zobraz modal okno validace
Jméno a příjmení: (povinné)
E-mail: (povinné)
Telefon: (povinné)
Váš vzkaz:
(povinné) - Takto označené položky je nutné vyplnit